Titel Logo
Rundschau für das Glan- und Lautertal
Ausgabe 6/2023
Öffentliche Bekanntmachungen
Zurück zur vorigen Seite
Zurück zur ersten Seite der aktuellen Ausgabe

Bekanntmachung

Bebauungsplan zur 3. Änderung des Bebauungsplanes „Die Hofstücker“ mit Erweiterung (Teilbereichsänderung) der Ortsgemeinde Homberg im beschleunigten Verfahren gemäß 13b des Baugesetzbuches (BauGB);

öffentliche Auslegung gemäß § 3 Abs. 2 BauGB

Der Ortsgemeinderat Homberg hat die Annahme des Entwurfes des Bebauungsplanes zur 3. Änderung des Bebauungsplanes „Die Hofstücker“ mit Erweiterung (Teilbereichsänderung) im beschleunigten Verfahren gemäß § 13b BauGB, in der von der mb.Ingenieure GmbH, Rockenhausen, vorgelegten Planfassung „November 2022“ beschlossen. Der Entwurf des v. g. Bebauungsplanes „Die Hofstücker“ in der Fassung „November 2022“, wird mit den planungsrechtlichen und bauordnungsrechtlichen textlichen Festsetzungen und der Begründung gemäß § 13b BauGB i. V. m. § 13a Abs. 2 BauGB i. V. m. § 13 Abs. 2 Satz 1 Nr. 2, 2. Alternative BauGB sowie dem Inhalt dieser Bekanntmachung gemäß § 3 Abs. 2 auf die Dauer eines Monats, in der Zeit von

20. Februar 2023 bis einschließlich 20. März 2023

auf der Homepage der Verbandsgemeindeverwaltung Lauterecken-Wolfstein unter

https://www.vg-lw.de/buerger-verwaltung/bauen-wohnen/bauleitplanung/

aktuelles/

eingestellt. Die Unterlagen können dort eingesehen bzw. heruntergeladen werden.

Die Unterrichtung der Öffentlichkeit über die allgemeinen Ziele und Zwecke sowie die wesentlichen Auswirkungen der Planung und die Möglichkeit zur Äußerung der Öffentlichkeit zur Planung (§ 13a Abs. 3 Satz 1 Nr. 2 BauGB) wird im Rahmen der öffentlichen Auslegung gemäß § 3 Abs. 2 BauGB sichergestellt.

Gemäß § 13a Abs. 3 Satz 1 und 2 BauGB wird hiermit ortsüblich bekannt gemacht, dass der Bebauungsplan im beschleunigten Verfahren ohne Durchführung einer Umweltprüfung nach § 2 Abs. 4 BauGB aufgestellt wird und gemäß § 13 Abs. 3 Satz 1 BauGB von dem Umweltbericht nach § 2a BauGB, von der Angabe nach § 3 Abs. 2 Satz 2 BauGB, welche Arten umweltbezogener Informationen verfügbar sind, sowie von der zusammenfassenden Erklärung nach § 10a Abs. 1 BauGB abgesehen wird.

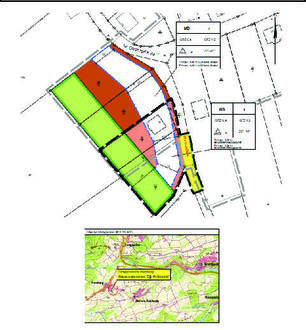
Die vorgesehene Erweiterungsfläche ist das Grundstück Flur 6, Flst. Nr. 43/2 der Gemarkung Homberg. Sie liegt südlich im unmittelbaren Anschluss an den Bebauungsplan „Die Hofstücker“. Um die am Rand des Baugebietes verbindlich festgesetzte (aber noch nicht ausgeführte) Ortsrandeingrünung nach Süden an den Rand der Erweiterungsfläche verlagern zu können, muss der neue Bebauungsplan auch die Grundstücke Flst. Nr. 42/5, 42/9 und 42/4 aus dem bestehenden Bebauungsplan umfassen und diesen insoweit ändern. Der Geltungsbereich des Bebauungsplanes zur 3. Änderung des Bebauungsplanes „Die Hofstücker“ mit Erweiterung (Teilbereichsänderung) im beschleunigten Verfahren gemäß § 13b BauGB umfasst somit die Grundstücke Flur 6, Flst. Nr. 43/2, 42/5, 42/4 und 42/9 der Gemarkung Homberg.

Die genaue Gebietsabgrenzung ergibt sich aus dem nachstehend veröffentlichten Auszug aus dem Bebauungsplanentwurf.

Gegenstand der vorgesehenen Aufstellung des Bebauungsplanes zur 3. Änderung des Bebauungsplanes „Die Hofstücker“ mit Erweiterung (Teilbereichsänderung) ist die Festsetzung eines Allgemeinen Wohngebietes (WA) im Sinne des § 4 der Baunutzungsverordnung (BauNVO). Die Ausnahmen gemäß § 4 Abs. 3 BauNVO sollen im Bebauungsplan allesamt ausgeschlossen werden.

Gemäß § 3 Abs. 1 und § 4 des Gesetzes zur Sicherstellung ordnungsgemäßer Planungs- und Genehmigungsverfahren während der COVID-19-Pandemie (Planungssicherstellungsgesetz - PlanSiG) wird die öffentliche Auslegung durch eine Veröffentlichung im Internet ersetzt und die Abgabe von Erklärungen zur Niederschrift bei der Behörde ausgeschlossen.

Zu dem Entwurf des Bebauungsplanes zur 3. Änderung des Bebauungsplanes „Die Hofstücker“ mit Erweiterung (Teilbereichsänderung) der Ortsgemeinde Homberg im beschleunigten Verfahren gemäß 13b BauGB mit den planungsrechtlichen und bauordnungsrechtlichen textlichen Festsetzungen und der Begründung können anlässlich der öffentlichen Auslegung während der Auslegungsfrist Stellungnahmen schriftlich bei der Verbandsgemeindeverwaltung Lauterecken-Wolfstein, Standort Wolfstein, Bergstraße 2, 67752 Wolfstein oder unter nachfolgender E-Mail Adresse bauleitplanung@vg-lw.de abgegeben werden. In begründeten Fällen können die Unterlagen auf Anfrage analog zur Verfügung gestellt werden (§ 3 Abs. 2 Satz 2 PlanSiG). Nicht fristgerecht abgegebene Stellungnahmen können bei der Beschlussfassung über den Bauleitplan unberücksichtigt bleiben (§ 3 Abs. 2, Satz 2, 2. Halbsatz BauGB i. V. mit § 4a Abs. 6 Satz 1 BauGB).

Homberg, den 02. Februar 2023
Für die Ortsgemeinde Homberg:
gez. Risch
Risch, Ortsbürgermeister

Bebauungsplan zur 3. Änderung des Bebauungsplanes „Die Hofstücker“ mit Erweiterung (Teilbereichsänderung) der Ortsgemeinde Homberg im beschleunigten Verfahren gemäß 13b des Baugesetzbuches (BauGB);

öffentliche Auslegung gemäß § 3 Abs. 2 BauGB

--- Grenze des räumlichen Geltungsbereiches