Titel Logo
Rundschau für das Glan- und Lautertal
Ausgabe 6/2026
Öffentliche Bekanntmachungen
Zurück zur vorigen Seite
Zurück zur ersten Seite der aktuellen Ausgabe

Bekanntmachung

Bebauungsplan „Pfingstweide, Neufassung“ im beschleunigten Verfahren gemäß § 13a des Baugesetzbuches (BauGB);

Aufhebung des Planaufstellungsbeschlusses gemäß § 2 Abs. 1 BauGB vom 17. Dezember 2018

Der Stadtrat von Wolfstein beschloss in seiner Sitzung am 17. Dezember 2018 den Planaufstellungsbeschluss für den Bebauungsplan „Pfingstweide, Neufassung“ im beschleunigten Verfahren gemäß § 13a BauGB.

Die Neufassung sollte die bessere Vermarktung der Fläche nach dem Brand des Discounters Aldi, auch für großflächige Handelsbetriebe, ermöglichen und die Gestaltungsmöglichkeiten für die Restfläche erweitern.

Im noch wirksamen Flächennutzungsplan der früheren Verbandsgemeinde Wolfstein wird der Bereich des Gewerbegebietes Pfingstweide als „Sondergebiet“ ausgewiesen, welches die Möglichkeit der Ansiedlung von großflächigen Handelsbetrieben zulässt.

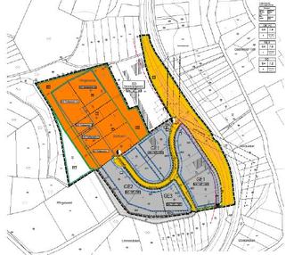
Der Geltungsbereich des vorgesehenen Bebauungsplanes „Pfingstweide, Neufassung“ gemäß § 13a BauGB umfasst die Grundstücke Flst. Nr. 900/7, 900/8, 900/16, 900/17, 900/18, 900/19, 900/22, 900/23, 900/24, 900/26, 900/28, 900/29, 900/30, 900/31, 900/32, 900/33, 900/34, 900/35, 900/36 (Straße), 900/37 (Straße) und eine Teilfläche des Grundstücks Flurstück Nr. 253/33 (Bundesstraße 270) der Gemarkung Wolfstein.

Die genaue Gebietsabgrenzung ergibt sich aus dem nachstehend veröffentlichten Auszug aus dem Bebauungsplanentwurf.

Auf der Grundlage der neusten Entwicklungen bezüglich der Ansiedlung eines EDEKA-Marktes in Wolfstein im Bereich Hauptstraße / Einmündung B 270, hat sich der Stadtrat in seiner Sitzung am 21.02.2024 dafür ausgesprochen, den für diese Ansiedlung notwendigen Bebauungsplan auf den Weg zu bringen. Gleichzeitig sprach sich der Stadtrat für die Verlegung des Sondergebiets aus dem Bereich „Pfingstweide“ in den Bereich „Hauptstraße / Einmündung B 270“ anlässlich der Neuaufstellung des Flächennutzungsplanes der Verbandsgemeinde Lauterecken-Wolfstein aus.

Die übergeordneten raumordnerischen Ziele sind sowohl bei der Aufstellung des Flächennutzungsplanes, wie auch des Bebauungsplanes, zu berücksichtigen. In verschiedenen Abstimmungsgesprächen mit der Oberen Landesplanungsbehörde (SGD Süd), der Planungsgemeinschaft Westpfalz und der Unteren Landesplanungsbehörde (KV Kusel) wurde die Anforderung eines Zielabweichungsverfahrens für die Ausweisung des Sondergebietes zur Ansiedlung der großflächigen Handelsbetriebe im Bereich Hauptstraße / Einmündung B 270 festgelegt. Hierzu ist es erforderlich, die beabsichtigten Planänderungen im Bereich des Bebauungsplanes „Pfingstweide“ anzupassen.

Da das Planerfordernis im Sinne des § 1 Abs. 3 BauGB für die Neufassung des Bebauungsplanes „Pfingstweide“ im beschleunigten Verfahren gem. § 13a BauGB nachträglich entfallen ist, hat der Stadtrat Wolfstein beschlossen, den Planaufstellungsbeschluss vom 17. Dezember 2018 aufzuheben.

Der räumliche Geltungsbereich ist in beigefügtem Lageplan mit einer unterbrochenen Linie dargestellt.

Der Planaufstellungsbeschluss vom 17. Dezember 2018 wird hiermit aufgehoben und der Beschluss gemäß § 2 Abs. 1 Satz 2 BauGB ortsüblich bekannt gemacht.

Wolfstein, den 29.01.2026
Für die Stadt Wolfstein
gez. Nickel
Nickel, Stadtbürgermeister

Bebauungsplan „Pfingstweide, Neufassung“ im beschleunigten Verfahren gemäß § 13a des Baugesetzbuches (BauGB);

Aufhebung des Planaufstellungsbeschlusses gemäß § 2 Abs. 1 BauGB vom 17. Dezember 2018

Grenze räumlicher Geltungsbereich ---