Titel Logo
Quierschieder Anzeiger
Ausgabe 26/2023
Seite 3
Zurück zur vorigen Seite
Zurück zur ersten Seite der aktuellen Ausgabe

Infoveranstaltung Verbrauchermarkt Fischbach Camphausen

Am Dienstag, 20. Juni, fand im Kolpihaus in Fischbach-Camphausen eine Informationsveranstaltung der Gemeinde zur möglichen Ansiedlung eines Verbrauchermarktes in der Ortsmitte statt. Etwa 100 Interessierte, darunter viele Mandatsträger:innen aus dem Orts- und Gemeinderat, waren gekommen, um sich von einem Vertreter des Investors, der Schoofs Immobilien GmbH Frankfurt, als auch der Gebietsleiterin des Betreibers, der Netto Marken-Discount Stiftung & Co. KG, aus erster Hand über das geplante Vorhaben zu informieren. Jenen, die nicht an der Veranstaltung teilnehmen konnten, wurde von Bürgermeister Maurer eine zweite Informationsveranstaltung in Aussicht gestellt, die je nach Nachfrage auch in kleinerem Rahmen stattfinden könnte.

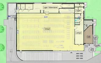
Nach der offiziellen Begrüßung und einleitenden Worten von Bürgermeister Lutz Maurer stellte zunächst Gebietsleiterin Melanie Schübbe von Netto ihren Arbeitgeber und das Konzept für die Filiale in Fischbach-Camphausen vor. Im Anschluss gab Klaus Beck von Schoofs Immobilien einen Einblick in die konkrete Planung und veranschaulichte die Informationen hierzu mit Bauzeichnungen und Grafiken.

Demnach soll der Netto-Markt gegenüber der Fischbachhalle und von der Zufahrt aus gesehen auf der rechten Seite des Marktplatzes errichtet werden (s. Grafiken). Der Eingangsbereich zeigt dabei zur Fischbachhalle hin. Die Verkaufsfläche würde 750 Quadratmeter betragen, hinzu kommt ein angegliedertes Café (etwa 50 Quadratmeter) mit Innen- und Außensitzbereich. Das Gebäude würde wenige Meter über die derzeit bepflasterte Fläche des Marktplatzes hinaus in die angrenzende Böschung reichen. Der Streifen zwischen dem dann neu gestalteten Marktplatz und Waldparkanlage wird auf einer Fläche von etwa 430 Quadratmetern neu begrünt. Da zwischen dem Netto-Markt und der Fischbachhalle nach der Umgestaltung des Platzes nur noch 50 Stellplätze zur Verfügung stehen würden, ist aus baurechtlichen Gründen die Schaffung weiterer Stellplätze für den Betrieb der Fischbachhalle erforderlich. Die Potenzialfläche hierfür ist der Bereich zwischen der Halle und der Waldparkanlage und die an der Zufahrt gelegene Freifläche (gelb markiert).

Nach den Präsentationen konnten die Bürgerinnen und Bürger ihre Fragen an das Podium richten. Dabei entwickelte sich eine rege, aber konstruktive Diskussion mit Argumenten für und gegen eine Ansiedlung. Viele Fischbacherinnen und Fischbacher begrüßten die Pläne, Kritik wurde vornehmlich bezüglich der Parkplatzsituation laut. Bürgermeister Maurer stellte zunächst klar, dass sich nach eingängiger Prüfung durch die Bauverwaltung nur der Marktplatz als möglicher Standort für einen Verbrauchermarkt herauskristallisiert habe. Außerdem sei „der Investor verpflichtet, Parkplätze, die auf dem Marktplatz wegfallen, auf eigene Kosten zu ersetzen. Dies wird in der Nähe der Fischbachhalle und des Marktplatzes erfolgen – wo genau, ist allerdings noch nicht final festgelegt“, sagte Bürgermeister Maurer. Denn: „Es gibt aktuell noch keinen Bebauungsplan, also auch noch keine weitergehenden Details. Nach Erstellung des Bebauungsplanes muss dieser alle rechtlichen Genehmigungsprozesse durchlaufen – davon betroffen sind die Gemeinde Quierschied, die Bürgerinnen und Bürger und die sogernannten Träger öffentlicher Belange wie z.B. Umweltministerium, Wirtschaftsministerium, Versorger usw.“, stellte Bürgermeister Maurer klar und ergänzte außerdem: „Der Marktplatz wird in seiner künftigen Form als Veranstaltungsfläche für das Dorffest nicht mehr ausreichen. Dies wurde insbesondere im Rahmen der beiden Bürgerinformations-Veranstaltungen zum Thema ISEK erläutert und darauf hingewiesen, dass sich die Waldparkanlage, insbesondere der Bereich rund um den Pavillon und die Bühne hierfür sehr gut eignen wird – selbstverständlich unter Berücksichtigung aller dafür notwendigen Aspekte.“

Nach der weitestgehend sachlichen und konstruktiven Diskussion zog Bürgermeister Lutz Maurer positives Fazit: „Ich bedanke mich bei Ihnen allen, dass Sie unserer Einladung gefolgt sind und sich aktiv an der Entwicklung in Ihrem Ort beteiligen. Ihre Fragen und Anregungen werden aufgenommen und finden im weiteren Prozess Berücksichtigung. Schließlich ist es unser Ziel, die für alle bestmögliche Lösung anzustreben.“