Titel Logo
Kreis Bitburg-Prüm
Ausgabe 25/2025
Amtliche Bekanntmachungen
Zurück zur vorigen Seite
Zurück zur ersten Seite der aktuellen Ausgabe
-

Öffentliche Bekanntmachung

Die Verbandsversammlung des Zweckverbandes Flugplatz Bitburg hat in ihrer Sitzung am 14.12.2022 die 3. Änderung des Bebauungsplans Nr. 14 „Shelter-Bereich A“ des Zweckverbandes Flugplatz Bitburg gemäß § 10 Abs. 1 des Baugesetzbuches (BauGB) in der Fassung vom 3. November 2017 (BGBl. I S. 3634), zuletzt geändert durch Artikel 11 des Gesetzes vom 13. Oktober 2022 (BGBl. I S. 1726), in Verbindung mit § 24 der Gemeindeordnung für Rheinland-Pfalz (GemO) in der Fassung vom 31.01.1994 (GVBl. S. 153), zuletzt geändert durch Art. 1 des Gesetzes vom 27.01.2022 (GVBl. S. 21) als Satzung beschlossen.

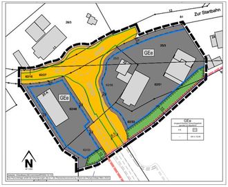
Lage und Grobabgrenzung des Plangebietes:

Das Plangebiet mit einer Größe von ca. 1,45 ha befindet sich im östlichen Teil des Bebauungsplanes Nr. 14. Überplant werden durch die 3. Änderung des Bebauungsplanes Nr. 14 „Shelter-Bereich A“ folgende Flurstücke: Gemarkung Scharfbillig, Flur 1, Flurstücke 62/16 (teilw.), 62/27 (teilw.), 62/48, 62/33, 62/56, 62/51 und Gemarkung Masholder, Flur 4, Flurstücke 25/2, 25/3, 28/3 (teilw.) und 81 (teilw.).

Die Abgrenzung des Geltungsbereiches der Satzung ist in dem nachstehenden unmaßstäblichen Lageplan dargestellt:

Die parzellenscharfe Umgrenzung des Plangebietes kann bei der Geschäftsstelle des Zweckverbandes Flugplatz Bitburg (Maria-Kundenreich-Straße 7, 54634 Bitburg) zur Einsichtnahme bereitgehaltenen Planunterlage entnommen werden.

Gemäß § 10 Abs. 3 BauGB wird hiermit der Beschluss der 3. Änderung des Bebauungsplanes Nr. 14 „Shelter-Bereich A“ ortsüblich bekanntgemacht.

Die 3. Änderung des Bebauungsplans Nr. 14 „Shelter-Bereich A“ wird einschließlich der zugehörigen Textfestsetzungen, der Begründung und der zusammenfassenden Erklärung gem. § 10a Abs. 1 BauGB als Anlage ab sofort bei der Geschäftsstelle des Zweckverbandes Flugplatz Bitburg, Maria-Kundenreich-Str. 7, 54634 Bitburg während der Dienststunden zu jedermanns Einsicht bereitgehalten. Über den Inhalt des Bebauungsplanes wird auf Verlangen Auskunft gegeben.

Hinweise:

Gemäß § 215 Abs. 2 BauGB wird auf Voraussetzungen für die Geltendmachung der Verletzung von Vorschriften sowie auf die Rechtsfolgen wie folgt hingewiesen:

Unbeachtlich werden gemäß § 215 BauGB

1.

eine nach § 214 Abs. 1 Satz 1 Nr. 1 bis 3 BauGB beachtliche Verletzung der dort bezeichneten Verfahrens- und Formvorschriften,

2.

eine unter Berücksichtigung des § 214 Abs. 2 BauGB beachtliche Verletzung der Vorschriften über das Verhältnis des Bebauungsplanes und des Flächennutzungsplanes und

3.

nach § 214 Abs. 3 Satz 2 BauGB beachtliche Mängel des Abwägungsvorgangs,

wenn sie nicht innerhalb eines Jahres seit dieser Bekanntmachung schriftlich gegenüber dem Zweckverband Flugplatz Bitburg unter Darlegung des die Verletzung begründenden Sachverhaltes geltend gemacht worden sind. Dies gilt entsprechend, wenn Fehler nach

§ 214 Abs. 2a BauGB beachtlich sind.

Gemäß § 44 Abs. 5 BauGB wird auf die Vorschriften des § 44 Abs. 3 Satz 1 und 2 sowie Abs. 4 BauGB hingewiesen. Hiernach kann der Entschädigungsberechtigte Entschädigung verlangen, wenn die in den §§ 39 bis 42 BauGB bezeichneten Vermögensnachteile eingetreten sind. Er kann die Fälligkeit des Anspruches dadurch herbeiführen, dass er die Leistung der Entschädigung schriftlich bei dem Entschädigungspflichtigen beantragt.

Ein Entschädigungsanspruch erlischt, wenn nicht innerhalb von drei Jahren nach Ablauf des Kalenderjahres, in dem die in § 44 Abs. 3 Satz 1 bezeichneten Vermögensnachteile eingetreten sind, die Fälligkeit des Anspruchs herbeigeführt wird.

Nach § 24 Abs. 6 GemO gelten Satzungen, die unter Verletzung von Verfahrens- oder Formvorschriften dieses Gesetzes oder aufgrund dieses Gesetzes zustande gekommen sind, ein Jahr nach Bekanntmachung als von Anfang an gültig. Dies gilt nicht, wenn

1.

die Bestimmungen über die Öffentlichkeit der Sitzung, die Genehmigung, die Ausfertigung oder die Bekanntmachung der Satzung verletzt worden sind, oder

2.

vor Ablauf eines Jahres nach der Bekanntmachung die Aufsichtsbehörde den Beschluss beanstandet oder jemand die Verletzung der Verfahrens- oder Formvorschriften gegenüber dem Zweckverband Flugplatz Bitburg unter Bezeichnung des Sachverhalts, der die Verletzung begründen soll, schriftlich geltend gemacht hat.

Hat jemand eine Verletzung nach Nr. 2 geltend gemacht, so kann auch nach Ablauf der Jahresfrist jedermann diese Verletzung geltend machen.

Mit dieser Bekanntmachung tritt die 3. Änderung des Bebauungsplanes Nr. 14 „Shelter-Bereich A“ des Zweckverbandes Flugplatz Bitburg in Kraft.

Zweckverband Flugplatz Bitburg
Bitburg, 26. Mai 2025
Andreas Kruppert
Verbandsvorsteher