Titel Logo
Kreis Bitburg-Prüm
Ausgabe 33/2022
Amtliche Bekanntmachungen
Zurück zur vorigen Seite
Zurück zur ersten Seite der aktuellen Ausgabe

Öffentliche Bekanntmachung

Bebauungsplan Nr. 14 „Shelter-Bereich A“ des Zweckverbandes Flugplatz Bitburg

- Änderung im beschleunigten Verfahren gemäß § 13a des Baugesetzbuches (BauGB) -

Öffentliche Auslegung des Planentwurfes gemäß §§ 13a Abs. 2 Nr. 1 u. § 13 Abs. 2 Nr. 2 u. § 3 Abs. 2 BauGB.

Die Verbandsversammlung des Zweckverbandes Flugplatz Bitburg hat in ihrer Sitzung am 19. Juli 2022 die Einleitung der 3. Änderung des Bebauungsplanes Nr. 14 „Shelter-Bereich A“ beschlossen. Der Planänderungsbeschluss wird hiermit öffentlich bekanntgemacht. Die Verbandsversammlung des Zweckverbandes Flugplatz Bitburg hat in gleicher Sitzung über den Bebauungsplanentwurf beraten und dessen öffentliche Auslegung beschlossen.

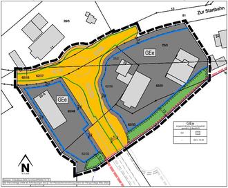
Der räumliche Geltungsbereich umfasst die Grundstücke Gemarkung Masholder, Flur 4, Flurstücke 28/3 (teilweise), 81 (teilweise), 25/2, 25/3 und Gemarkung Scharfbillig, Flur 1, Flurstücke 62/16 (teilweise), 62/27 (teilweise), 62/48, 62/33, 62/56, 62/51 und ist in einem weiter unten abgedruckten Kartenauszug dargestellt. Die parzellenscharfe Abgrenzung des Plangebietes kann auch in der Geschäftsstelle des Zweckverbandes Flugplatz Bitburg (Zimmer 1.38), Maria-Kundenreich-Str. 7, 54634 Bitburg eingesehen werden.

Die Planung wird als Bebauungsplan der Innenentwicklung gemäß § 13a BauGB im beschleunigten Verfahren ohne Durchführung einer Umweltprüfung nach § 2 Abs. 4 BauGB aufgestellt. Gemäß § 13a Abs. 2 Nr. 1 i. V. m. § 13 Abs. 2 Nr. 1 BauGB wird hier von der frühzeitigen Unterrichtung und Erörterung nach § 3 Abs. 1 und § 4 Abs. 1 BauGB abgesehen.

Grundsätzliches Ziel der Planung:

Durch den Bebauungsplan sollen im Wesentlichen die bauplanungsrechtlichen Voraussetzungen für die Anbindung des Bebauungsplans Nr. 19 „Flugfeld West“ an die öffentliche Erschließung geschaffen werden.

Der Entwurf der 3. Änderung des Bebauungsplans Nr. 14 „Shelter-Bereich A“, bestehend aus der Planzeichnung, Textfestsetzungen und Begründung liegt nunmehr gemäß § 13a i. V. m. § 3 Abs. 2 BauGB in der Zeit

vom 30.08.2022 bis einschließlich 05.10.2022

in der Geschäftsstelle des Zweckverbandes Flugplatz Bitburg (Zimmer 1.38), Maria-Kundenreich-Str. 7, 54634 Bitburg, zu jedermanns Einsicht öffentlich aus.

Während dieser Auslegungsfrist kann sich die Öffentlichkeit über die allgemeinen Ziele und Zwecke sowie über die wesentlichen Auswirkungen der Planung unterrichten und sich zur Planung äußern bzw. Stellungnahmen zur Bebauungsplanaufstellung vorbringen. Über den Inhalt des Entwurfes wird auf Verlangen Auskunft gegeben.

Zusätzlich besteht die Möglichkeit zur Teilnahme am elektronischen Beteiligungsverfahren. Auf der Homepage des Zweckverbandes Flugplatz Bitburg – https://www.konversion-bitburg.de/flugplatz-bitburg/downloads/ - kann jedermann Einsicht in die vollständigen Planentwurfsunterlagen zum Verfahren nehmen, diese abrufen und auch auf elektronischem Wege unter der E-Mail-Adresse: info@konversion-bitburg.de zu der Planung Stellung beziehen. Dieser Dienst steht nur während der Beteiligungsfrist vom 30.08.2022 bis einschließlich 05.10.2022 zur Verfügung.

Es wird darauf hingewiesen, dass nicht innerhalb der Offenlegungsfrist abgegebene Stellungnahmen bei der Beschlussfassung über den Bebauungsplan (gemäß § 4a Abs. 6 BauGB) unberücksichtigt bleiben können, sofern die Gemeinde deren Inhalt nicht kannte und nicht hätte kennen müssen und deren Inhalt für die Rechtmäßigkeit des Bebauungsplans nicht von Bedeutung ist.

Bitburg, 8. August 2022
Zweckverband Flugplatz Bitburg
Janine Fischer
Stellvertretende Verbandsvorsteherin